Signing of the contracts.
- Glencastle National School

- Jun 8, 2023
- 3 min read
Updated: 2 days ago
Two weeks ago we were delighted to sign the contracts for work here at Glencastle National School. This has been long awaited and we are thrilled that the works will get underway in the next few weeks. Getting the project to this point has taken a lot of hard work and dedication from school staff, board of management, parents, present government and the wider community. We are very grateful to all. We look forward to getting our new school and we know this can be achieved by working together. Ní neart go cur le chéile. Homepage Text from 2023-2026. Contract signed for Glencastle NS Special Needs Extension
Contract documents have been signed between the Board of Management of Glencastle NS and Kellman Developments that will see a new Special Needs extension as well as the refurbishment of the existing mainstream school.
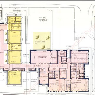
The new project will comprise 3 new classrooms, toilets, Multi-purpose/Games room, DCC room, car park, nurse’s office, electrical switch room, as well as a new frontage to the existing school that includes a canopy over entrance.
Contracts were signed by Tom McAndrew, on behalf of the BOM, and Catherine McIntyre, Principal of the school. Cathal Kelly signed the contract on behalf of his construction company, Kellman Developments. Also in attendance were members of the Design Team from AXO Architects, Leonard Gildea Quantity Surveyors, Taylor & Boyd Structural Engineers and Heavey Kenny Associates (Mechanical & Electrical Engineers).
Many of those who had advocated for the new building were also in attendance, including Minister Dara Calleary TD, Michael Ring TD as well as local County Councillors Gerry Coyle and Sean Carey.
Tom McAndrew, Chairperson of the Board of Management welcomed the contract signing for the new project. “This event today is another step along the way in securing a state-of-the-art facility for the parents and children of Erris and I thank all of those who have supported us in our quest. A special thanks to all my colleagues and former colleagues who have served on the Board of Management and generously given their time in bringing this project to this point”.
Catherine McIntyre, Principal, outlined the contribution from current and previous staff at the school. “I want to acknowledge the huge efforts of our current staff in providing such a welcoming learning experience for all our children. I’m also delighted to welcome here today Mary Gaughan and P J Moran, previous Principals at the school, who did so much to advance the cause of Special Education in the early days.”
Willie O’Sullivan, who has worked at the school since 1991 remembered the earliest days of the Special Class at Glencastle. “The first Special Class comprised seven children from all over Erris and operated from a spare classroom in the main school. With the help of voluntary donations, including from our emigrants abroad, a new special needs unit was opened in 1999 and in the intervening years we have welcomed children from every townland in Erris.”
Both Catherine and Willie, as well as the Board of Management are effusive in their praise of all those who continue to raise funds for the Special Class. “So many people, including our exiles abroad, have made huge efforts to support us so that we can provide the very best education for all our children including those with additional needs. We cannot thank them enough.”

















































Comments